
1488 Morgan RD Bremen, GA 30110
4 Beds
3.5 Baths
2,614 SqFt
UPDATED:
Key Details
Property Type Single Family Home
Sub Type Single Family Residence
Listing Status Active
Purchase Type For Sale
Square Footage 2,614 sqft
Price per Sqft $281
Subdivision None - 5 Acres
MLS Listing ID 7685826
Style Craftsman
Bedrooms 4
Full Baths 3
Half Baths 1
Construction Status To Be Built
HOA Y/N No
Tax Year 2025
Lot Size 5.000 Acres
Acres 5.0
Property Sub-Type Single Family Residence
Source First Multiple Listing Service
Property Description
and create the lifestyle you've been searching for.
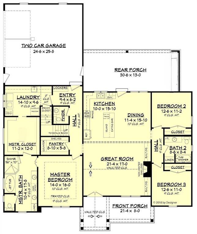
If desired, the builder can construct the Summerville plan, featuring 4 bedrooms and 3.5 bathrooms on the main and upper level.
This property offers the space, privacy, and potential to design a home that truly fits your vision. Contact us today for building
specifications, plan details, and to walk the property.
Location
State GA
County Haralson
Area None - 5 Acres
Lake Name None
Rooms
Bedroom Description Other
Other Rooms None
Basement None
Main Level Bedrooms 3
Dining Room Other
Kitchen Other
Interior
Interior Features Other
Heating Other
Cooling Other
Flooring Other
Fireplaces Number 1
Fireplaces Type None
Equipment None
Window Features None
Appliance Other
Laundry Other
Exterior
Exterior Feature None
Parking Features None
Fence None
Pool None
Community Features None
Utilities Available Other
Waterfront Description None
View Y/N Yes
View Other
Roof Type Other
Street Surface None
Accessibility None
Handicap Access None
Porch None
Total Parking Spaces 2
Private Pool false
Building
Lot Description Other
Story Two
Foundation None
Sewer Septic Tank
Water Public
Architectural Style Craftsman
Level or Stories Two
Structure Type Other
Construction Status To Be Built
Schools
Elementary Schools Buchanan
Middle Schools Haralson County
High Schools Haralson County
Others
Senior Community no
Restrictions false
Tax ID 0088 0048V
Acceptable Financing Cash, Conventional
Listing Terms Cash, Conventional

GET MORE INFORMATION






